4685 Long Branch AveSan Diego, CA 92107




Mortgage Calculator
Monthly Payment (Est.)
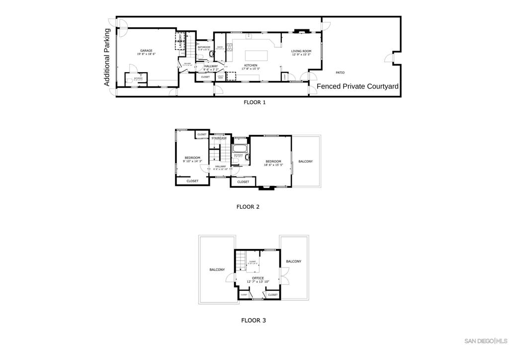
$7,642Gorgeous Ocean Beach detached single family home offering over 2,000 sq ft of thoughtfully designed coastal living. Ideally located just five blocks from the beach in the heart of highly walkable OB, this three-story residence was rebuilt from the ground up in 2004 and blends timeless Spanish-inspired architecture with modern comfort. Designed to capture ocean breezes and golden sunsets, the home showcases seamless indoor-outdoor flow with a private courtyard oasis complete with jacuzzi and full privacy fencing, three expansive view patios ideal for entertaining, and a rare oversized garage offering exceptional flexibility for parking, storage, workshop space, or potential ADU conversion (R-2 Minor zoning). No HOA and VA approval add even more value. Inside, you'll find two bedrooms, two bathrooms, and a versatile top-floor flex space ideal for a third bedroom, home office, or creative studio. The bright living area flows into an open-concept chef’s kitchen with granite countertops, stainless steel appliances, and custom cabinetry. The spa-inspired primary suite features a luxurious steam shower, while multiple decks provide stunning coastal and sunset views. A portion of the home has been successfully operated as a short-term rental, offering valuable income potential in one of San Diego’s most desirable beach communities. A rare opportunity to own a private, flexible beach-close home in the heart of OB.
| 4 days ago | Listing updated with changes from the MLS® | |
| 2 weeks ago | Listing first seen on site |
This information is for your personal, non-commercial use and may not be used for any purpose other than to identify prospective properties you may be interested in purchasing. The display of MLS data is usually deemed reliable but is NOT guaranteed accurate by the MLS. Buyers are responsible for verifying the accuracy of all information and should investigate the data themselves or retain appropriate professionals. Information from sources other than the Listing Agent may have been included in the MLS data. Unless otherwise specified in writing, the Broker/Agent has not and will not verify any information obtained from other sources. The Broker/Agent providing the information contained herein may or may not have been the Listing and/or Selling Agent.






Did you know? You can invite friends and family to your search. They can join your search, rate and discuss listings with you.